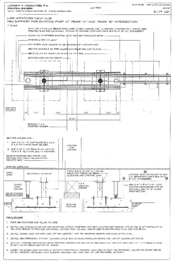
Work Beneath the Ballroom Floor

The substructure under the ballroom was suffering the effects of age and deterioration.  A seamless replacement of many floor trusses nearest the stone fireplace ensured solid and reliable ballroom floor.

Architectural Rendering of Truss Replacement
Detail of Truss Replacement
A peek underneath the floor
A Peek Under the Floor
Work complete – a small patch of flooring was installed and ultimately refinished to match existing floor boards